Home » Pallet Inverter » Pallet Tipper for Safe Pallet Exchanging | Top Industries Inc

Pallet Tipper
V-Shape 120°

Get a quote

Performance:

30 pallets/hour

Capacity:

4,400 lbs

Pallet size:

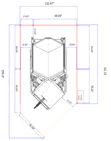
Up to 48″ x 48″

Compatible load types:

Various Loads

V-Shape is a stationary pallet tipper originally designed for pallet exchanging, capable of handling products of various shapes, weights, and heights, as well as different types.

In fact, the V-Shape is one of the most versatile pallet inverter when it comes to product handling.

Originally designed from scratch in 2009 by the CEO and Production Director of the Toppy Group, V-Shape has been tested and improved over the years, and remains one of our best-selling machines to this day.

Features at a Glance

Since 2009, we have been producing this pallet tipper, which still remains one of our best-selling products to this day. This reliable machine has helped countless businesses streamline their pallet exchange operations all over the world.

Pallet Inverter Under Production - Image of workers operating the machine in a factory.

It was originally designed to be highly versatile, capable of handling a wide range of loads, including bags, big bags, boxes, drums, bottles, cans, vials, and many other products. It is also capable of handling heavy and bulky loads!

A Sonar Centering System that automatically detects the product’s dimensions and centers it on the destination pallet, ensuring even edges and proper overhangs. With this innovative feature, the product is perfectly aligned on the pallet after the exchange.

It can be customized to match the level of automation required. In manual mode, the operator controls the opening and closing of the upper and lower platforms, as well as the machine’s tilting. Alternatively, in automatic mode, the process is entirely automatic—simply load the product into the machine and press a button on the control panel to complete the pallet exchange operation.

Efficient 120 Pallet Tipper V-Shape for Industrial Warehouses

The tilting of the entire load to 120° is a safe and essential mechanism for handling certain types of loads, preventing the load from falling during the tilting process. 

 

The V Shape is offered in a variety of versions, each tailored to accommodate different load capacities.

This versatility ensures that the unit is capable of handling a wide range of loads, starting from a minimum of 2,200 lbs and extending up to a maximum of 4,400 lbs

Our pallet tippers can be customized with a full or partial AISI 304 stainless steel or a galvanized finish, ensuring durability and suitability for industries with strict hygiene or corrosion resistance requirements.

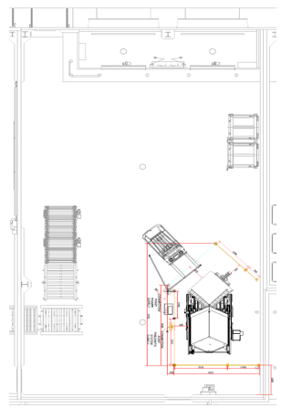
Our in-house engineering department is able to develop a customized machine layout, adapting it perfectly to the available space at the customer’s site. The design approach takes into account not only the dimensions of the area but also the specific needs and requirements of the customer, ensuring a tailored solution that optimizes the efficiency and functionality of the system.

Image of a 120 Pallet Tipper V-Shape

How Does the V-Shape Cycle Work?

The cycle with the “V-Shape” can be semi-automatic or fully automatic, depending on automation requirements.

The pallet exchange cycle begins with the operator loading the entire load into the machine. The operator then activates the upper platform (via the control panel) to securely fix the load for tilting (up to 120°).

Once the load is tilted, the lower platform opens to separate the pallet from the product, which is lowered to the ground (while the product remains tilted).

When the pallet reaches ground level, the operator removes the old pallet and inserts the new pallet using a pallet truck or forklift.

The operation ends when the new pallet is positioned at the base of the product, which is then tilted back to its original position.

Contact our Experts for Details

Installation at a Customer’s Site – Automatic Version

The featured installation below showcases the V-Shape Automatic model, where the operator simply loads the product into the machine and initiates operations using a control panel located outside the safety fences. The client, one of the largest supermarket chains in Italy, needed a solution to handle pallet changes for a wide variety of product types.

This model proved to be the perfect fit, as it can efficiently manage products of various shapes and sizes.

Frequently Asked Questions

This solution is designed for those who need to change pallets and have a production flow that requires a semi-automatic solution, while also needing to handle a wide variety of products with different shapes and sizes.

However, if you’re not sure which machine is right for you, don’t worry.

Our product range includes a variety of models, and to identify the best solution for your needs, we begin by analyzing your products, the pallets you use, and most importantly, how many pallet changes you make per hour. With this information, we can quickly recommend the most efficient solution for your specific requirements.

It’s one of our strengths. Our after-sales team is available 24/7.

For both mobile and fixed machines, we always offer an emergency spare parts kit. If additional parts are needed, we have a fully stocked inventory in Davie, Miami, and can ship what’s necessary within a few business days. In the case of a machine needing a repair, we have a team of talented technicians ready to be deployed. For automated solutions, we always schedule routine maintenance after the purchase to ensure everything is running smoothly.

The return is practically immediate from an ergonomic perspective. Just imagine – no more physical strain on operators, no injuries, and the pallet changing process is significantly sped up with automation. 

Top Industries Inc offers the most advanced technologies not only in the USA but worldwide.

Our parent company and Italian manufacturer, Toppy, is the world-leading company for state-of-the-art pallet exchanging solutions. They have a great deal of experience since being established in 1978 and supplying over 20,000 units in more than 147 countries!

Customization and tailoring machine / system is our specialty. When it comes to fully automated lines, we always provide customized solutions for each unique case, as every production flow involves different needs.

Get more Info

Trusted by 20,000 + world-class organizations of all sizes